AutoCAD2007是Autodesk公司推出的里程碑式CAD设计平台,集成了革命性的动态块技术和增强的3D建模功能。作为经典版本,它不仅保留了AutoCAD系列精准的二维绘图核心优势,更通过智能参数化设计大幅提升工程制图效率,其创新的动态块特性允许用户通过自定义参数和动作创建智能图块组件。该版本在机械设计、建筑工程和工业制图领域展现出卓越的兼容性与稳定性,虽然已停止维护,但其精简高效的特点仍使其成为教育机构、传统制造企业和基础工程设计领域的首选解决方案
第一步
在电脑中找到存储着需要添加图片的 CAD 图纸的文件夹,双击该图纸文件,AutoCAD2007 软件会自动启动并打开此图纸。

第二步
进入 AutoCAD2007 操作界面后,找到下方的命令栏。在命令栏中准确输入“IM”,输入完成后,按下回车键。

第三步
按下回车键后,图纸右侧会弹出“外部参照”菜单。在该菜单的左上角,找到并点击“附着图像”命令(一般会有相应图标及文字标识)。

第四步
点击“附着图像”命令后,会弹出文件选择窗口。在电脑的文件系统中,浏览到存放需要添加图片的文件夹,找到目标图片文件(可通过文件名、缩略图等方式确认)。找到图片后,窗口中会显示该图片的预览,仔细查看预览内容,确认无误后,点击窗口右下角的“打开”按钮。

第五步
点击“打开”按钮后,会弹出“图像”菜单。此菜单中包含一些关于图片插入的设置选项,如插入点、缩放比例、旋转角度等,一般情况下保持默认设置即可满足基本需求。确认设置无误后,点击“确定”按钮。此时,图片开始加载到 CAD 软件中,等待进一步确定插入位置。

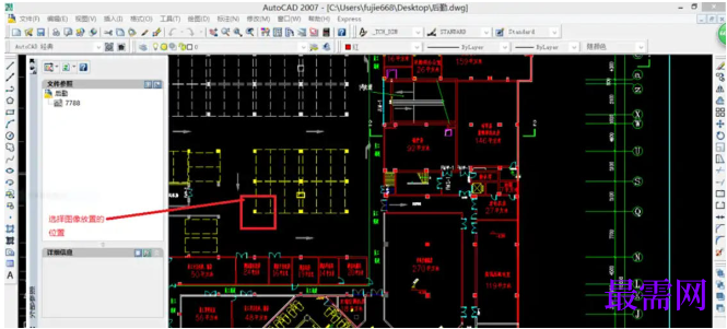
第六步
图片加载后,将鼠标移动到 CAD 图纸中,找到想要插入图片的具体位置。在该位置处,点击鼠标左键,这样就确定了图片的插入点。

第七步
确定插入位置后,不要松开鼠标左键,拖动鼠标来选定图片的显示尺寸。拖动过程中,可以实时看到图片大小的变化,根据实际需求调整到合适的尺寸后,再次点击鼠标左键,完成图片尺寸的确定。

第八步
图片成功插入到 CAD 图纸后,为了确保操作成果得以保存,点击软件上方菜单栏中的“文件”,选择“保存”命令(也可使用快捷键“Ctrl + S”),将插入图片后的 CAD 文件保存到电脑中指定的位置。至此,在 AutoCAD2007 中插入图片的全部操作完成。

已有 22658 名学员学习以下课程通过考试
最需教育客户端 软件问题一手掌握
去 App Store 免费下载 iOS 客户端
点击加载更多评论>>